Haddenham.net Logo

Latest news

News stories are ordered below with the latest headlines at the top. Please keep us up-to-date by submitting stories to the editor.

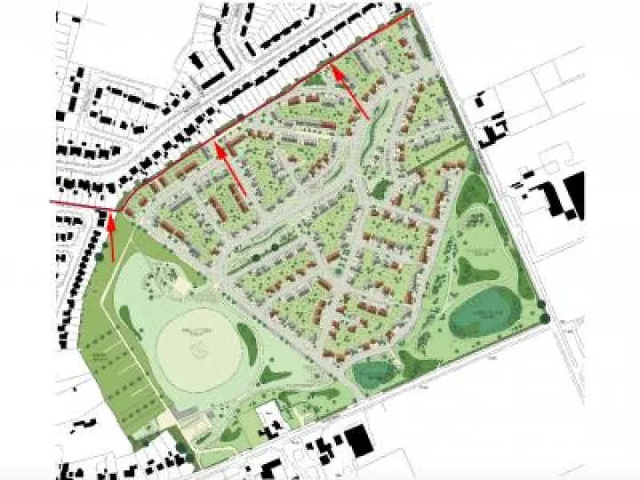
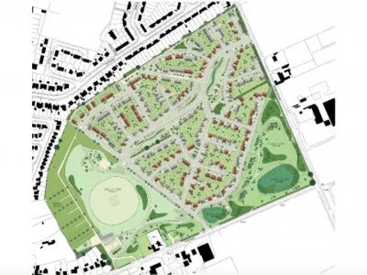
Dandara Site Plan 2018
Latest Plans for Glebe-Aston Road
31 Mar 2018
Community Cinema 06a
Haddenham Screen: Summer Season
31 Mar 2018
Walk of Witness 02
Walk of Witness 2018
31 Mar 2018
Oxford-to-Cambridge-expressway 01
No Consultation for New Road
30 Mar 2018
Easter_Crown of Thorns 06
Easter Services 2018
28 Mar 2018
Egg House Butchery Team
Prestigious Accolade for Egg House
27 Mar 2018
Pete Summerskill 01
All Change at VH
27 Mar 2018
EasterBunny&Eggs
Easter Egg Hunt
24 Mar 2018
Richborough Plans 01
Development East of Churchway
23 Mar 2018
Prostate Cancer Test 03
Prostate Cancer Tests
23 Mar 2018
Dandara Site_footpath
Hoggin Footpath?
21 Mar 2018
Hillbillies' Cheque Presentation
Hillbillies' Fundraising News
21 Mar 2018
First Prev  1 of 3  Next Last
© 2012 – 2026 Haddenham.net