Haddenham.net Logo

Redrow Liaison Meeting

by Haddenham Webteam – 3rd November 2023
Back home/News/Redrow Liaison Meeting
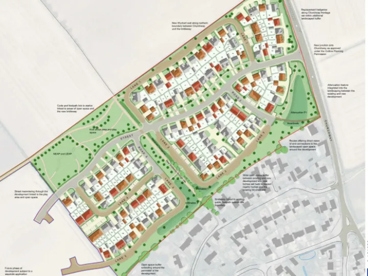
Redrow HAD007 2023 plans

A meeting was held in the village hall on Thursday 2nd November to enable local residents to voice their concerns over the Redrow development to a senior representative from the development company.

The meeting was chaired by our local MP, Greg Smith and Redrow was represented by senior manager, John Nunn.

Residents of Rosemary Lane, The Clays and Rudd's Lane were present, as was the Chairman of the parish council and representatives of the Haddenham Village Society and a Bucks Councillor.

Damage to Witchert Walls
A key issue that residents wished to address was the failure of large sections of the witchert wall that bounded the northern edge of their properties facing the development site (formally identified on the Neighbourhood Plan as HAD007 – farm land previously owned by the Aston family, lying to the West of Churchway, North of Rosemary Lane).

Residents felt that recent damage to the witchert wall was a result of excess surface water on the land since its use for agricultural purposes ceased after its purchase by Redrow in December 2020.

Mr Nunn made it clear that Redrow does not consider the damage to the witchert wall to be related to changes in the use of the land and that the company accepts no legal liability for this. Hence, the company has no intention, at the present time, of offering compensation or financial assistance to residents in respect of the costs of rebuilding the fallen witchert walls.

Various arguments were extended by residents and others to suggest that the sale of new Redrow houses would be facilitated if the witchert walls facing onto the development were in a good state of repair. Mr Nunn did not appear to be influenced by this suggestion.

He did indicate, however, that security measures (such as fencing) could be put in place if necessary, so that existing properties in Churchway, The Clays and Rosemary Lane could not be accessed from the Redrow development via gaps in the Witchert wall.

Footpath and Cycle Route
Another subject raised was the strong desire of the parish council, HVS and local residents to see a direct footpath and a cycle route included in the development to provide easy access towards Haddenham & Thame Parkway via the Airfield development. This facility would encourage residents of the new Redrow development to walk or cycle to the sports field, the Coop supermarket and the station rather than using their cars.

Meeting participants made it clear to Mr Nunn that there were already serious roadside parking issues close to the station and several hundred additional daily car journeys from the new Redrow estate were likely to create even greater traffic management problems, especially through Rudd's Lane and Dollicott as well as via Banks Road, Fort End and Thame Road.

Mr Nunn was not familiar with the footpath route proposed by the parish council and stated that such details would not be finalised until Phase Two of the development was at the detailed planning stage. These plans would not be submitted to Bucks' Planning before Spring 2024 and, according to Mr Nunn, "they are not a priority for Redrow at the moment".

Environmental Issues
Asked about the extent to which the new Redrow development would incorporate energy saving and environmental concerns, Mr Nunn indicated that heating would be provided by air source heat pumps, but the houses would not have roof-mounted PV solar panels "as this is not a requirement to satisfy Part L of the building regulations".

Redrow's Liaison with the Community
A most serious concern expressed by a number of meeting attendees was the poor levels of communication experienced to date between Redrow and parish council in particular and with residents more generally. The HPC Chairman contrasted the almost total lack of engagement of Redrow with the parish council (despite the professional planning expertise among its councillors) with that of other recent developers, including Cala and Dandara. The Village Society Chair also contrasted the regular site briefings given to local residents by the Dandara site manager during the early phases of that company's development on Aston Road.

One of the few clear commitments made by Mr Nunn was his intention to establish much more effective channels of communication between Redrow and the local community. In the first instance this would be via the Chairman of the parish council, who would then invite a small group of key local residents and representatives of the Village Society to be part of a regular liaison group.

Local Maintenance of Community Assets
The HPC Chairman restated an earlier offer to Redrow, made soon after the developer first acquired the land, that the parish council would be very willing to assume the responsibility and costs for the maintenance of community assets (such as the playground and street lights) on the new development rather than Redrow delegating this to an estate management company. This would mean the costs would be born out of local taxation rather than as an additional costs to owners of the new Redrow houses, and ensure that regular checks and maintenance needs were adequately satisfied. Mr Nunn gave no indication of the company's intentions in this regard.

Site Security Alarms
One final input from meeting attendees was a request that the sensitivity and sound levels of the on-site security alarms might be adjusted to reduce the frequent noise nuisance that nearby residents are experiencing at various times of the day and night. Mr Nunn made a written note of this but did not indicate any specific intention on the part of the company by way of a response.

© 2012 – 2026 Haddenham.net