Haddenham.net Logo

Latest news

News stories are ordered below with the latest headlines at the top. Please keep us up-to-date by submitting stories to the editor.

Money Down the Drain 01
Wasting Public Resources?
9th April 2018
River Thame Catchment 01
Surveying Health of Local Rivers
9th April 2018
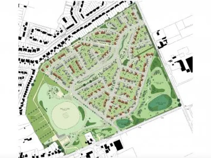
Dandara Site Plan 2018
Dandara: Village Society Comments
6th April 2018
Witchert Chorale
Witchert Chorale Concert
6th April 2018
McColls 01
McColl's Attack
4th April 2018
First Prev  3 of 3  Next Last
© 2012 – 2025 Haddenham.net