Haddenham.net Logo

Latest news

News stories are ordered below with the latest headlines at the top. Please keep us up-to-date by submitting stories to the editor.

McColls 01
McColl's Attack
4th April 2018
Witchert Chorale
Witchert Chorale Concert
6th April 2018
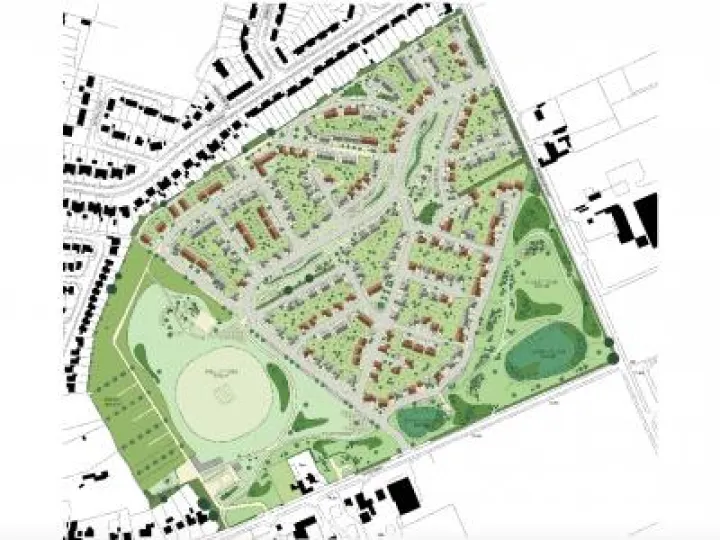
Dandara Site Plan 2018
Dandara: Village Society Comments
6th April 2018
River Thame Catchment 01
Surveying Health of Local Rivers
9th April 2018
Money Down the Drain 01
Wasting Public Resources?
9th April 2018
Fat Bloke 02
Still Shedding the Pounds!
10th April 2018
Aspen Park spitfire launch 2
CALA's 'Spitfire Spectacular'
11th April 2018
Vicar of Dibley Poster
'Vicar of Dibley'
11th April 2018
Wychert Ramblers at Kissing Gate
Wychert Way Walk
12th April 2018
Community Fair 03
Haddenham Community Fair
13th April 2018
Village Hall_BookOnline
Online VH Booking System
13th April 2018
Seniors Using a PC
Online Safety for Seniors
14th April 2018
First Prev  1 of 3  Next Last
© 2012 – 2025 Haddenham.net