Haddenham.net Logo

Dandara: Village Society Comments

by Haddenham Webteam – 6th April 2018
Back home/News/Dandara: Village Society Comments
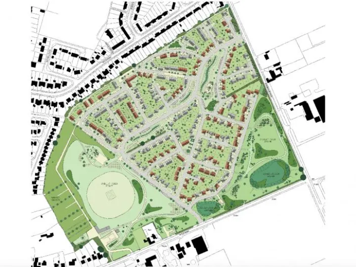
Dandara Site Plan 2018

Conversations among local residents, particularly on social media, sometimes question the role of the Village Society (along with the parish council) in terms of its efforts to influence housing developments in Haddenham. Unfortunately some comments can occasionally reflect little real insight or awareness of the actual efforts made on behalf of the local community. This may reflect inadequate communications by HVS as much as anything. However, this article may go some way towards overcoming such criticism.

At the end of March we published the latest set of comments submitted to AVDC by the parish council in relation to the most recent planning revisions for Dandara's Glebe-Aston Road development – see here.

Below is the letter submitted to AVDC by the Haddenham Village Society, in relation to the same development.

Haddenham Village Society Response to AVDC

Application 17/01841/ADP – Land at Haddenham Glebe, Aston Road/Stanbridge Road, Haddenham – Approval of reserved matters relating to Phases 1 and 2 only.

Introduction

1. Haddenham Village Society, founded in 1965, represents over 300 households in the village, some 15% of the current village population, and seeks to preserve the village's heritage, ethos and community spirit, whilst accepting that Haddenham has to take its fair share of additional houses.

Changes in the Revised Application

2. The Society welcomes the various changes introduced in the revised application, and in particular:

Further concessions to making the housing reflect better the surrounding Conservation Area e.g. additional wychert wall features, additional footpath links between residential areas, greater use of render with stone/brick banding to foundations.

The introduction of a clear view of the church tower through the development from Stanbridge Road to give a sense that the development forms part of a wider community.

Much improved integration of the Public Right of Way along the North boundary. 

Pedestrian priority being given in some places, although this is not consistent across the whole site.

Street view of the housing being more varied, reflecting the character of the surrounding village better, with an increased use of space to the front of properties and a sensible mix of materials and housing styles.

Provision of swift nesting boxes and crevices for bats in the Southern part of the site.

Areas of Continuing Concern

3. The Society continues to have concerns about some aspects of the proposed layout, as stated below.

4. Parking Provision – Larger Properties. Inclusion of garage spaces as part of the parking provision for larger properties could result in overspill onto surrounding roads, as few people use their garages for parking on a daily basis and larger properties are likely to have multiple car users. Policy TGA1 of the Haddenham Neighbourhood Plan states that "Garages will not normally count towards overall parking provision. Garages will only count towards overall parking provision where developers can demonstrate that they represent the only means of parking a car. In such cases, garages must have a clear, unobstructed internal dimension of 6m x 3m, must have functional entrances and with sufficient space provided for the opening and closing of garage doors".

5. Parking Provision – Smaller Properties. The long runs of parking spaces having been broken up, some smaller properties are no longer adjacent to their allocated parking space, which may cause issues with people leaving cars on the road and could be difficult for people with small children or mobility issues.

6. Traffic Management. Several cul de sacs have been removed and made into through roads, resulting in several routes across the site that may become "rat runs".  A Traffic Management Plan needs to be produced to show how through traffic and the impact on the Church End Conservation Area can be limited.

7. Link Through to Stanbridge Road. The Society would like to see a link from the Public Open Space in the South East corner of the site through to the Garden Centre and the path along Stanbridge Road. This would help to make this space feel part of the wider community and not just a private play area for this development, and would also give residents easier access to facilities at the Garden Centre.

8. Shared Space Safety. The Society seeks clarification on how "shared space" areas, such as that adjoining the Flats, where there will be both moving vehicles and pedestrians/cyclists, will be designated and managed.

9. Path Material. As the Society has previously proposed, consideration should be given to specifying the use of a "Coxwell Oxfordshire Stone Gravel" surface (as used by Aston Rowant Parish Council and described on the website at www.grundon.com/Self-Binding-Path-Gravel ) or "Hoggin" (as used for part of the Phoenix Way) – either of these would give a more rural feel, with less surface water run-off, than the use of tarmac.

10. Derelict Land. Action needs to be taken to incorporate the derelict land on the North side of Aston Road opposite Tiggywinkles into the plans so that it does not remain a continuing eyesore.

11. Access to St Mary's School. The Society is very concerned about the lack of provision for safe pedestrian access to St Mary's School and strongly supports the proposal by Haddenham Parish Council for a new path within the field boundary between St Mary's School and Tiggywinkles, to be in place before occupancy of the new properties commences. It is understood that this field is owned by Bucks CC.

12. Site Access. The Society agrees with the Haddenham Parish Council that the Construction Site Management Plan should be conditioned, in that:

No vehicles should access the site via Church End, or the weight restricted Station Road or via the single width narrow bridge at the South end of Stanbridge Road from Kingsey.

Delivery times should be restricted to site hours with no parking up of vehicles in the vicinity awaiting site opening (as has happened on a nearby development).

Site hours should exclude Saturday mornings before 9.00am, Saturday afternoons, Sundays, statutory holidays and evening working.

The Way Ahead

13. Haddenham Village Society requests AVDC to engage with Dandara to address the areas of concern listed in paragraphs 4 to 12 above.

Graham Tyack
Secretary, Haddenham Village Society

© 2012 – 2026 Haddenham.net