Haddenham.net Logo

Latest Plans for Glebe-Aston Road

by Haddenham Webteam – 31st March 2018
Back home/News/Latest Plans for Glebe-Aston Road
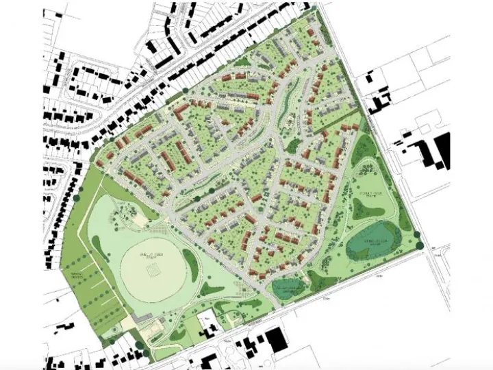
Dandara Site Plan 2018

For those who find it difficult to remain abreast of the efforts of the parish council to represent the best interests of the village in the face of significant pressure for housing development, here are the (draft) minutes of the latest Planning Committee meeting, held on Monday 19th March 2018.

17/01841/ADP – Land At Haddenham Glebe Stanbridge Road
Approval of reserved matters of appearance, landscaping, layout and scale relating to Phases 1 and 2 of outline permission 14/02666/AOP comprising 143 dwellings

Mr Truesdale gave a short presentation on the planning history of the Glebe-Aston Road site.

The Parish Council submitted a full response in June 2017 with 20 recommendations to AVDC which are appended for ease of reference. This was followed up by several requests to AVDC for a meeting to review our comments, and to discuss newly emerging concerns about the proposed burial ground, but no response has been received. During this period the Parish Council has had several constructive follow-up meetings with Dandara, has met with both BCC Highways and Education departments, and with St Mary's School. The Parish Council has also engaged its own consultant to advise on the burial and cricket ground proposals. The Parish Council finally recently received a phone call from the 3rd appointed Planning Officer resulting in a useful discussion.

1. The Parish Council considered the revised application submitted in February 2018.
Good progress has been made on several of our earlier concerns. In particular the Parish Council welcomes:

  • The revisions to the site layout, streetscape and materials
  • Improved integration of the Right of Way on the northern boundary into the scheme
  • Improved access to the open space in the south east corner
  • Greater use of witchert-style walls in the design
  • Bringing forward the clearing and resurfacing of the existing off-site public footpath linking
  • the development to Churchway to the 1st phase
  • Confirmation of the inclusion of nesting boxes for bats and swifts
  • Establishing trial ground water monitoring to enable assessment against Environment

2. The Parish Council has the following further comments.

Right of Way along northern boundary

3. It has become apparent during discussions that this path was gifted to the village in the 19th century and any proposal to extinguish or re-route the path would have been contested. The PC is pleased this has been acknowledged, and welcomes the much improved integration into the scheme. The PC strongly supports the very considerable public concern about retaining the rural aspect of the path by not surfacing with tarmac, but with hoggin or a suitable alternative such as Coxwell Self-Binding Path Gravel. This path belongs to the village, and the community's wishes should be respected.

Burial Ground

4. AVDC must ensure proper engagement by the Environment Agency in response to the proposed burial ground. The EA's response to the outline application failed to mention the burial ground at all, yet the EA publishes criteria which need to be met and has a role in the approval process.

Confirmation of Parish Council's Future Interests

5. The Parish Council confirms that it is prepared to adopt all open spaces and street lighting subject to suitable commuted sums, and that we would prefer that the use of residential management companies is avoided or minimised as far as possible. If necessary, the PC could be approached to take on full maintenance responsibility for the Right of Way on the northern boundary, which it already clears as a devolved county council responsibility. The Parish Council further confirms that it is willing to own, design and build the proposed pavilion-style building on the open space.

Attenuation Basin in south east corner

6. Natural England has entered a comment that dogs should be banned from mitigation areas. Although not strictly a material planning matter, the PC can see no good reason for this, and no such comment has been made in respect of other developments in the village. Our discussions with Dandara have assumed that these areas will be accessible to pedestrians and dog-friendly (as indeed on the airfield development), whereas by contrast dog control will be required on the burial and cricket grounds.

Derelict Land on Aston Road

7. The PC repeats our concern that a small parcel of derelict land on the north side of Aston Road opposite Tiggywinkles is not included within the development and looks likely either to remain an eyesore, or could come forward again for development. Either way, the outcome is a discordant intrusion which will detract from the success of Dandara's proposals. The PC calls on AVDC to use its compulsory purchase powers to acquire this site for open space in the interests of completing this development and making it a success.

Over-55 dwellings

8. The PC welcomes the provision of these units. We understand that the objective of reserving homes for the older age group at future resale will be realised by means of covenant in the title deeds, and this should be conditioned.
Site Access and Management

9. The PC understands that there will be a construction site management plan, and this should be conditioned. No vehicles should access the site via Church End, or the weight restricted Station Road or via the single width narrow bridge at the south end of Stanbridge Road from Kingsey. Delivery times should be restricted to site hours with no parking up of vehicles in the vicinity awaiting site opening (as has happened on a nearby development). Site hours should exclude Saturday mornings before 9am, Saturday afternoons, Sundays, statutory holidays and evening working.

© 2012 – 2026 Haddenham.net