Haddenham.net Logo

Affordable Homes in Haddenham

by Haddenham Webteam – 11th August 2017
Back home/News/Affordable Homes in Haddenham
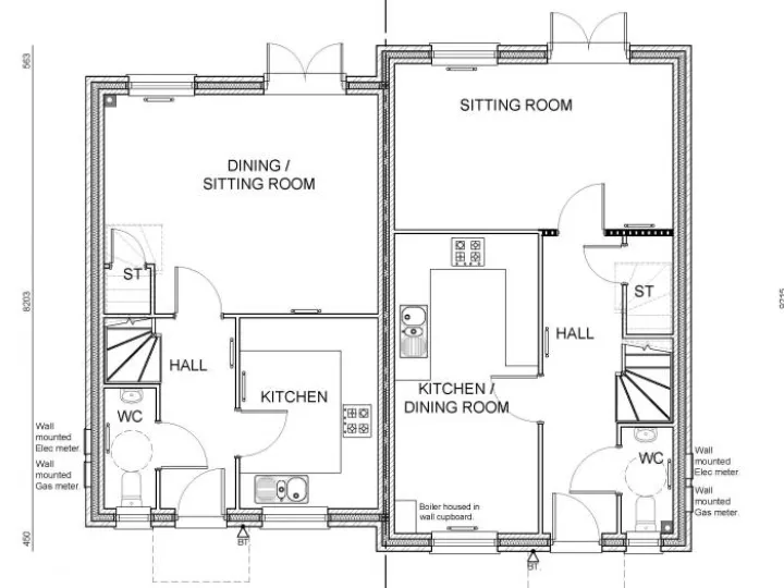
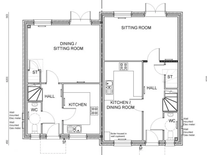
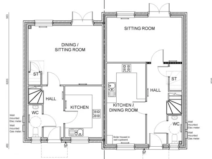
Cala Dollicott SiteCala Dollicott_Plots 18-21 Ground Floor Plan

Many local residents wince at the price tags being attached to the newly built homes currently being marketed in Haddenham. So it is pleasing to see some attempts being made to assist young people, who would otherwise be 'priced out' of the area in which they grew up.

Hightown Housing Association, based in Hemel Hempstead, will have two semi-detached properties available for shared ownership from October this year on the development in Dollicott.

Pleasingly, the two properties are reserved for residents of a local background only, with the following eligibility requirements:

  • Have lived within the AVDC district for 3 out of the last 5 years or,
  • Have a permanent job or the offer of a permanent job wholly within the Aylesbury Vale District or,
  • Have close family ties with family in the district (parents, adult children, brothers or sisters who have been resident in the district for the past 5 years at the time a Low-Cost Home Ownership allocation decision is made)

The shared ownership scheme allows those qualifying to buy a share in a new home (normally 50%) and to rent the remaining share at a subsidised rate. Over time, more shares in the property can be purchased.

Click on each of the images to view larger versions.

More details are available here.

Here is the information supplied by Hightown Homes:

Nightingale Place, Dollicott, Haddenham

New build, 2 and 3 bedroom properties, for 50% shared ownership, with a deposit from as little as 5%. Full prices will be presented from October 2017. Only 2 properties are available.

The semi-detached houses include a contemporary fitted kitchen, with spacious bedrooms and living space. Both properties have a modern family bathroom, with the addition of a separate toilet and water basin downstairs.

There is also the added benefit of two parking spaces per property, situated alongside the house. With a private front and rear garden, these properties are ideal for families connected to the Aylesbury Vale District.

Nightingale place is situated off Dollicott road, Haddenham. The properties are conveniently placed in the entrance of the development, facing the communal green space.

3 bed property = total floor area of 86.8 m².

2 bed property = total floor area of 74.8 m².

For more information, please visit the Hightown Homes website

Additionally, you can Email: sales@hightownha.org.uk or call our team on 01442 292381

© 2012 – 2026 Haddenham.net