Haddenham.net Logo

New Development Along Station Road?

by Haddenham Webteam – 19th August 2025
Back home/News/Station Road Development?
Enlight2863

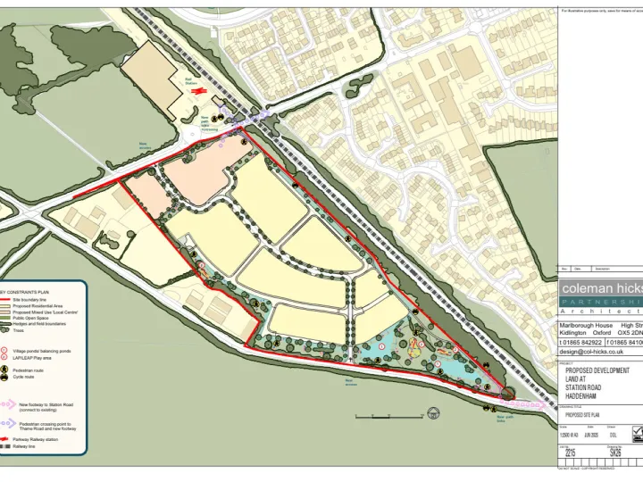
A planning application has been lodged with Bucks Planners for the plot between the railway line and Station Road. It has received very little publicity and very few comments (objections) have been recorded on the Bucks website.

The Parish Council discussed the plans at its planning meeting on 4th August and have prepared a commentary for submission to the Planning Department at Bucks Council. The commentary can be read by clicking on the PDF featured on this webpage.

To view the application plans and have an opportunity to comment, copy-and-paste the following into your web browser:

http://bit.ly/46VtesQ

The deadline for further public comments is Thursday 28th August 2025

The Parish Council is likely to be allowed a longer lead time for submitting its comments, but members of the public are encouraged to move quickly, if they wish to voice their own views.

Here are some comments submitted so far:

From Haddenham Village Society

1. Haddenham Village Society acknowledges the research which has gone into producing a clear Design and Access Statement.

2. The Society objects to this application because of widespread major concern about:

a. Additional pressure on schools which are already full and will be unable to offer any places to new residents, requiring pupils to travel outside the village for schooling.

b. Additional pressure on medical facilities which are already overstretched, as noted in the response by the NHS Buckinghamshire, Oxfordshire and Berkshire West Integrated Care Board. New residents may need to register elsewhere for medical and dental treatment.

c. Extension of the existing village boundary with potential for yet further extension.

d. Loss of agricultural land at a time when the country should be looking to be more self-sufficient, importing less food from abroad.

3. The Society however welcomes the proposed retention of the permissive right of way and of the trees and hedgerows on the boundaries, and requests Buckinghamshire Council to make these formal conditions of acceptance of this application should the Council be minded to approve it.

From a Haddenham Resident

Looking at the key sustainability criteria laid down by the Government's National Planning Policy Framework December 2024 ("NPPF").

1). Agricultural Land Classification – Failure to make effective use of land

2). Habitat: A Failure to make effective use of the land

both of the above give rise to the conclusion that its development would constitute a failure to make effective use of the land, as otherwise required by the NPPF:

Currently, there are no relevant development plan policies in place within the meaning of the NPPF published December 2024. This therefore implies that there exists a presumption that the development is sustainable unless, (per para 11.d of the NPPF)

Section 65 page 188 " where significant development of agricultural land is demonstrated to be necessary areas of poorer quality land should be preferred to those of higher quality " (see attached objections)

Sustainability: Whilst Bucks County Council is actively working on supplying a 5 year housing land supply (5YHLS) its arguable that it should allow local councils sufficient time to prepare their own housing location plans , in order to avoid mandatory housing targets which according to the Local Government Association (LGA) P6 "undermine locational and design policy structure afforded to local councils over developers presumption when engaged to promote low quality unsustainable, haphazard development" .The current planning application is a perfect example of this .

Housing Targets & Local Plan (VALP): Looking at the Location plan it would appear that Haddenham has already met its housing allocation in fact it has over achieved its allocation for the period 2013 – 2033 under the Vale of Aylesbury Local Plan (VALP), which allowed an additional buffer of 5.4% for unforeseen housing need across the county .

Infrastructure: It is arguable that the haphazard nature of the ongoing developments agreed by Bucks County Council has resulted in underinvestment by the developer's in essential infrastructure ,as clearly demonstrated in the supporting submissions from the NHS, Thames Water and even Network Rail who are not in support of this latest housing development for 192 dwellings .

There is also no reason why Haddenham's rail link to central London should result in an unfair weighting in our allocation of housing numbers/ targets for the whole of Buckinghamshire when there are 28 other railway stations in Buckinghamshire, the vast majority of which have direct lines into central London.

List of Railway stations in Buckinghamshire – FamousFix List:

https://www.famousfix.com/list/railway-stations-in-buckinghamshire-92945810

We understand that Haddenham is seen as a strategic settlement , the same location plan ( p26) clearly states key features afforded to strategic settlements:

Growth to be proportionate and reflect the capacity to grow,

Development will reflect the character of the local circumstances,

Growth will protect high quality agricultural land

The size, local circumstances and Grade 2 agricultural nature of this site falls outside the key features afforded to strategic settlements

NPPF Compliance: The development does not meet the National Planning Policy Framework's (NPPF) sustainability criteria, which emphasize protecting the environment, heritage, and biodiversity. Allowing the development would be detrimental to all these objectives.

We trust that this field will not be granted planning permission and simply add to the sprawling haphazard nature of the housing estates springing up in Haddenham and instead that Haddenham is allowed to prepare and submit its own housing location plan in order to develop the village in a structured manner , with the correct infrastructure to service an increasing population and with appropriate facilities following a public consultation .

© 2012 – 2026 Haddenham.net