Haddenham.net Logo

Dandara Development Plans

by Haddenham Webteam – 18th March 2018
Back home/News/Dandara Development Plans
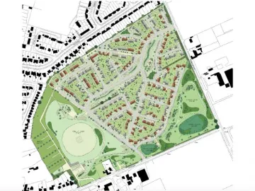
Dandara Meeting_16Mar18Dandara Site Plan 2018

There has been renewed interest and public discussion regarding the Aston Road-Glebe site, now that house building company Dandara has begun work preparing the ground.

On Friday 16th March a small group of Willis Road residents, together with David Truesdale (HPC Chairman) had a meeting with Jamie Macrell – the Project Manager on the Dandara/Aston Rd development – to discuss the public footpath than runs across the site, on the Southern boundary of Willis Road, from Chuchway to Standbridge Road.

Some residents have expressed concern that the path will be surfaced with tarmac.

Mr Macrell was very helpful.

He explained that Dandara has no need to lay a tarmac surface, but he understands that this choice is an AVDC decision.

Jamie suggested a 'Hoggin' surface instead, simply to reduce the mud and yet maintain a more 'rural' appearance. Hoggin is a mix of gravel, sand and clay that binds firmly when compacted, yet allows water to drain through it. Not only does it look attractive but it's easy to maintain, apparently.

Some residents have expressed frustration over the challenge of navigating the AVDC planning website – searching on a particular planning reference number often reveals a huge number of documents, offering a somewhat intimidating prospect and requiring much effort to plough through.

To assist those interested in viewing a selected list of architectiral plans and design documents relating to the Aston Road-Glebe development by Dandara, please click here.

If you're interested, the Illustrative Master Plan is probably a good place to start.

© 2012 – 2026 Haddenham.net