Haddenham.net Logo

Dandara Development Updates

by Haddenham Webteam – 5th March 2021
Back home/News/Dandara Development Updates
Dandara Site_footpathChurchway to Dandara footpath

Haddenham Parish Council reports that it held a meeting with Dandara representatives on 2nd March 2021. Here is its report:

Burial Ground
The burial ground land (located on the western edge of the site, close to The Gables) is now being prepared with heavy groundwork underway to disperse the spoil from the site across the area to raise the ground level as agreed.

Churchway to Stanbridge Rd Footpath
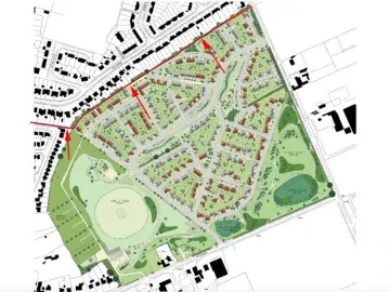
(See red arrows on map)
Work to surface the footpath link from the Dandara site to Churchway (affectionately referred to as "Gleebie" by long-standing residents) is underway, tree work has been carried out along the length of the path in advance. The footpath remains closed for safety reasons while this work is carried out, however some walkers are moving the security fencing to gain access.

There has been a delay installing the street lights on the path due to lantern supply issues. The work is still on track to complete in April 2021.

Local Flood Issues?
Dandara representatives have met with flood officers from Buckinghamshire Council due to flooding reported on the land adjacent to Tiggywinkles being attributed to the Dandara development. It was confirmed that the flooding was not related to the development. Dandara were asked to test the culvert on the corner of Aston Road / Stanbridge Road which has been done and a recording of water flowing through sent to BC to confirm there is no blockage.

Redesign of Dandara Site (Planning Application 20/03764/APP)
This new application covers 2.9 hectares (7.2 acres) of the Danbdara site and proposes an increase of 32 (to 85) dwellings there, making 312 for the whole site. The proposed plan is for 10 two-bed houses and 75 three and four-bed houses to be substituted for the original 15 three-bed houses and 38 four and five-bed houses.

HPC reports that:
Progress is slow with planning application 20/03764/APP but there is hope a meeting with Philippa Jarvis (Planning Officer) and Jonathan Bellows can be arranged soon to clarify discrepancies in approach to the layout of the site.

Commuted Sum Payable by Dandara?
There is a difference of opinion on whether a commuted sum is due on the burial ground land which is the only outstanding item delaying progress with the land transfer agreement. The S106 Monitoring Officer has informally supported the parish council's view that a commuted sum would be payable.

© 2012 – 2026 Haddenham.net