Haddenham.net Logo

House of Spice Development

by Haddenham Webteam – 28th June 2022
Back home/News/House of Spice Development
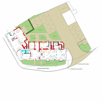
House of Spice 02Fort End Plans_FirstFloorFort End Plans_GroundFloor

In case you've missed it, Bucks Council has approved the development application for the House of Spice including some internal demolition, extension, alteration and conversion of the building to five dwellings together with parking and amenity space.

If you wish to explore the details, here's the link

Click on either of the plan images to see an enlarged view.

© 2012 – 2026 Haddenham.net