Haddenham.net Logo

Serious Concerns over Redrow

by Haddenham Webteam – 8th December 2021
Back home/News/Serious Concerns over Redrow
Redrow Plans_Revised 12Nov21

Property developer Redrow has submitted revised plans in respect of the land west of Churchway – the large fenced field on the Thame (i.e., West) side of Churchway (designated HAD007).

Both the parish council and the Haddenham Village Society have voiced concerns about the revised plans, and members of the Rosemary Lane Action Group are extremely keen that individual residents should also submit formal comments before the public consultation period concludes this coming Tuesday, 14th December 2021.

Here's the background information:

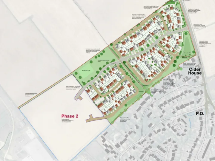
Land Development – West of Churchway, Haddenham (Phase 1: 153 properties)

Redrow Housing has now submitted a revised design & outline plan. See here.

Overall, the new proposal does address some objections, but there are still a number of issues for which the Redrow plans still fail to meet the Conditions included in the outline planning permission – 17/02280/AOP (9th October 2020):

Three principle concerns remain:

1. The overall design.
2. How the development will link with the rest of the village.
3. How flooding concerns will be addressed.

Overall Design

The 'new' design code has been carefully worded to comply with the letter of the new design requirements. Affordable housing is better distributed throughout the site and there is a better overall design mix although the extensive use of modern brick does not reflect local vernacular architecture.

The new plans do provide for a' wychert' wall to the north of the development which is welcome.

The siting of the pumping station & electricity sub-station in the North Eastern corner is less intrusive than previously proposed.

There is no provision for electric vehicle charging points, cycle parking areas, cycle storage areas or access for the disabled.

The revised plan does reinstate the hedgerow on Churchway.

The play areas are still situated on the North-West boundary. It was proposed these should be re-sited on the South-West boundary as a buffer between the development and the Industrial Area, Redrow are ignoring this and saying that there will be a separate application for Phase 2, a 'future phase of the development'.

The housing density differs substantially between the two phases. Phase 1 (153 houses), is 18 units per hectare, Phase 2(120 houses) is 25 units per hectare. There are no details for phase 2.

Other than the 'Wychert' wall, the reinstatement of the north south corridor & the southern boundary buffer zone, the new design code fails to respond to the new guidance in sufficient detail.

Linking the development to the rest of the village

A cycle and footpath link is shown to the Western boundary, but no indication of how this will pass through Platers Road & link to the station, the Co-op or the sports pitches. This was a key factor in assessing this site as a sustainable development.

The new pedestrian access running south along Churchway finishes at the southern border just north of Rosemary Lane but it is still not clear how this principal pedestrian route links to Churchway. The plan does not comply with the condition to 'minimise danger' to pedestrians.

Surface water drainage scheme & Flooding

Redrow have still not submitted revised plans that separate the surface water drainage system and cut-off ditch systems to reassure residents that the flooding risk has been mitigated.

Whilst the pumping station has been re-sited to the north eastern corner, it is not clear where it pumps to.

Conclusion

Whilst there are some improvements, the new proposal still fails to create a sympathetic development which will enrich this area of the Vale of Aylesbury.

The development does not respond sensitively and appropriately to the context and the needs of the immediate or local area & existing neighbouring properties.

There is insufficient detail with regards to the efficacy of the flood defences.

There are considerable concerns relating to the safety of pedestrians which have not been met in the revised plan, and about pedestrian access from the development to the rest of the village.

Members of the public can post comments & objections before 14th December.

Please do so here.

Rosemary Lane Action Group
December 2021

© 2012 – 2026 Haddenham.net