Haddenham.net Logo

Latest news

News stories are ordered below with the latest headlines at the top. Please keep us up-to-date by submitting stories to the editor.

McColls 01
McColl's Attack
04 Apr 2018
Witchert Chorale
Witchert Chorale Concert
06 Apr 2018
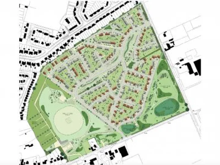
Dandara Site Plan 2018
Dandara: Village Society Comments
06 Apr 2018
River Thame Catchment 01
Surveying Health of Local Rivers
09 Apr 2018
Money Down the Drain 01
Wasting Public Resources?
09 Apr 2018
Fat Bloke 02
Still Shedding the Pounds!
10 Apr 2018
Aspen Park spitfire launch 2
CALA's 'Spitfire Spectacular'
11 Apr 2018
Vicar of Dibley Poster
'Vicar of Dibley'
11 Apr 2018
Wychert Ramblers at Kissing Gate
Wychert Way Walk
12 Apr 2018
Community Fair 03
Haddenham Community Fair
13 Apr 2018
Village Hall_BookOnline
Online VH Booking System
13 Apr 2018
Seniors Using a PC
Online Safety for Seniors
14 Apr 2018
First Prev  1 of 3  Next Last
© 2012 – 2026 Haddenham.net