Haddenham.net Logo Link
 

Latest news

Back home » News

News stories are ordered below with the latest headlines at the top. Please keep us up-to-date by submitting stories to the editor.

Safe Walking & Cycling
Support the Greenway
30th August 2025
Casting Poster
Pantomime Casting
27th August 2025
Bench Damaged
Bench Vandalised
27th August 2025
Untitled
Festival of Football
27th August 2025
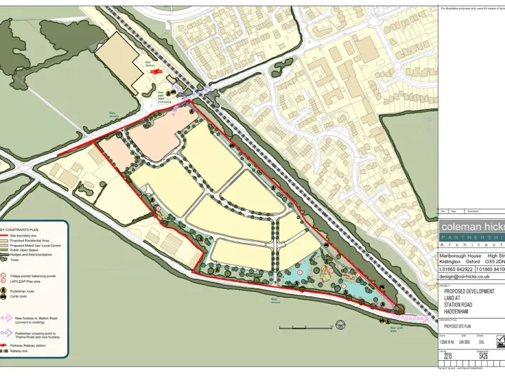
Enlight2863
New Development Along Station Road?
19th August 2025
Annual Show 01
HHS Show
8th August 2025
Bat image 03
Bat Walk
8th August 2025
Summerfest Charity Presentation Aug25
Scarecrow Festival Funds
4th August 2025
Coffee Cake & Company 1
Coffee, Cake & Company
3rd August 2025
© 2012 – 2025 Haddenham.net