Haddenham.net Logo

Latest news

News stories are ordered below with the latest headlines at the top. Please keep us up-to-date by submitting stories to the editor.

Financial Support Charity Help
Financial Help at Christmas
02 Nov 2023
HS2 Road Works 2
HS2 Road Closures
03 Nov 2023
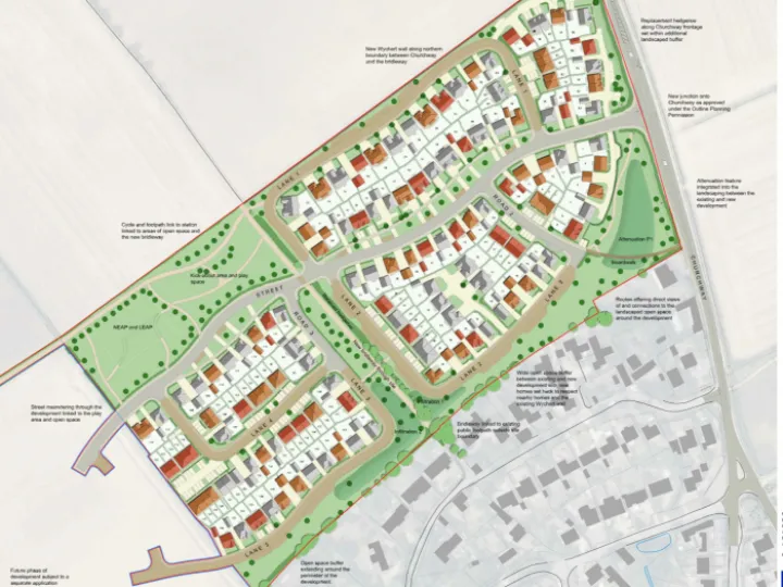
Redrow HAD007 2023 plans
Redrow Liaison Meeting
03 Nov 2023
Housing Estate 01
Bucks' Housing Strategy
08 Nov 2023
Remenbrance Soldier Silhouette
Remembrance Service
09 Nov 2023
Dog with Santa Hat at Xmas
Santa at Hearing Dogs
09 Nov 2023
Horticultural Show_Autumn 02
Horticultural Society AGM
11 Nov 2023
Food Waste
Reducing Food Waste
11 Nov 2023
Village Carol Service 02
Plea for Instrumentalists
11 Nov 2023
EM7I3027
Haddenham Honours the Fallen
12 Nov 2023
Xmas Market Poster
Christmas Market
13 Nov 2023
FNH Nurses Photo
Florence Nightingale Hospice
13 Nov 2023
First Prev  1 of 3  Next Last
© 2012 – 2025 Haddenham.net