Haddenham.net Logo

Plans for New Nursery

by Haddenham Webteam – 1st August 2019
Back home/News/Plans for New Nursery
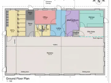
HStM Nursery PlanNursery Floor Plan

Plans have been submitted for the construction of a new standalone nursery on land adjacent to Haddenham St Mary's CE School. The plans also include provision for external hard and soft play space, soft landscaping and car parking.

Should the proposals come to fruition, potential users of the new nursery (i.e., parents & guardians) will be delighted to note that a small car park is being included for dropping off and picking up their youngsters.

The image shows the proposed site layout – click on the image to view an expanded version.

A higher resolution graphic of the site plan can be seen by clicking on the PDF or via the Bucks County Council website, where all the supporting documentation (14 documents) can be viewed.

To see the documents, click here

If the link doesn't work, go to the Bucks CC planning page and enter the planning reference CC/0042/19 in the search engine.

Haddenham parish council has been informed that the consultation concludes on Thursday 22nd August 2019.

© 2012 – 2026 Haddenham.net