Haddenham.net Logo

Hoggin Footpath?

by Haddenham Webteam – 21st March 2018
Back home/News/Hoggin Footpath?
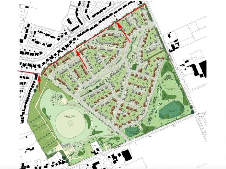
Dandara Site_footpath

You may have seen reports on this website and on its linked Facebook page discussing the suitability of Hoggin as a surface (in preference to tarmac) for the fieldpath that runs across the rear Southern boundary of Willis Road, on the Northern edge of the Dandara (Aston Road-Glebe) development site.

According to Project Manager, Jamie Macrell, Dandara has no need to lay a tarmac surface on the Churchway to Stanbridge Road footpath. Apparently this is an AVDC initiative.

Jamie suggested that a Hoggin surface would maintain a more 'rural' appearance compared with tarmac. Hoggin is a mix of gravel, sand and clay that binds firmly when compacted, yet allows water to drain through it. Not only does it look attractive but it's easy to maintain. It is also suitable for wheelchair users and mobility vehicles.

The parish council planning committee has decided to request that Hoggin (or a similar material) is utilised for the Churchway to Stanbridge Road footpath rather than tarmac. If you would like to add your own personal comments to the debate, and help to influence AVDC over this matter, you can do so online by clicking the 'Make a Comment' button on the AVDC planning webpage.

To navigate to the correct page, go to the AVDC site and at the Search window ("Enter a keyword, reference number ...etc") copy-and-paste in this code: 17/01841/ADP

Then look for the 'Make a Comment' button.

Alternatively (or in addition) here are some key contacts:

AVDC Case Officer: Jason Traves
Email: devcon@aylesburyvaledc.gov.uk

Councillor Michael Edmonds
Address: Lowergreen Farm Chearsley Aylesbury Bucks HP18 0DF
Phone: 01844 208603
Mobile: 07973 872768
Email: medmonds@aylesburyvaledc.gov.uk

Councillor Brian Foster
Address: 2 Slave Hill Haddenham Aylesbury Bucks HP17 8AY
Phone: 01844 290520
Work Phone: 01844 290520
EmailL: bfoster@aylesburyvaledc.gov.uk

Councillor Judy Brandis
Address: Fort End House Fort End Haddenham Aylesbury Bucks HP17 8EJ
Phone: 01844 292484
Email: jbrandis@aylesburyvaledc.gov.uk

© 2012 – 2026 Haddenham.net