Haddenham.net Logo

Street Names for Dandara Site

by Haddenham Webteam – 27th July 2018
Back home/News/Street Names for Dandara Site
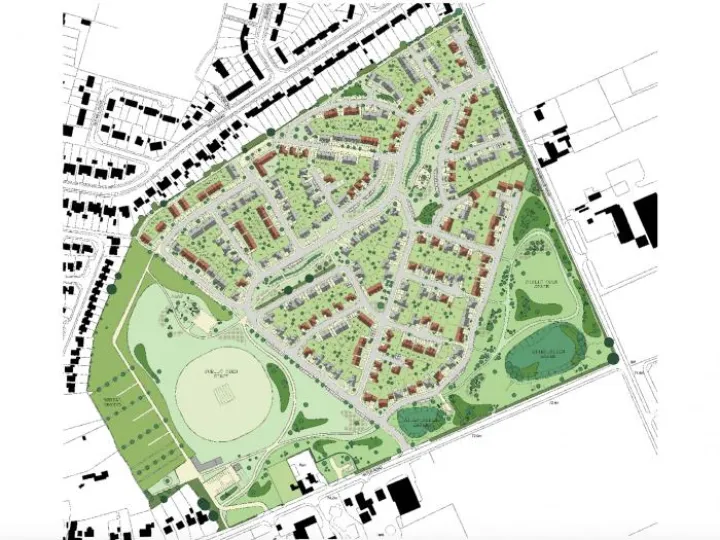
Dandara Site Plan 2018

AVDC has announced that the following street names have been adopted for Phase 1 & 2 of the Dandara (Aston Road-Glebe) development. The Royal Mail has also been notified:

CRICKETERS WAY
THOMPSON MEWS
ALDERSON WAY
NICHOLSON ROAD
BURCH MEWS
PAINE CLOSE
HEDGEHOG WAY
WILLOUGHBY LANE
IVIN CLOSE
ROSE MEADOW
BARN OWL LANE
MASLIN ELMS
LAPWING MEWS
SKYLARK CLOSE and
ROOKERY PIECE

The official notification can be viewed by clicking on the PDF

© 2012 – 2026 Haddenham.net