Haddenham.net Logo

Latest news

News stories are ordered below with the latest headlines at the top. Please keep us up-to-date by submitting stories to the editor.

Pilates 01
Pilates Classes
31 May 2017
Tythe Barn Tea 02
Fundraising Thanks
31 May 2017
Fete 34
Volunteer Helpers Sought
30 May 2017
Flyover of Church End
A Snapshot of Haddenham 2017
28 May 2017
Owl
U3A Photography Outings
27 May 2017
Wychert Way Walkers
Village Walk
27 May 2017
Burglar 01
Foiling Burglars
26 May 2017
Junior Cricket 01
Junior Cricket Tournament
26 May 2017
Classic Car 02
Classic Car Display
26 May 2017
Manchester Bombing Graphic 01
Walking for Manchester
26 May 2017
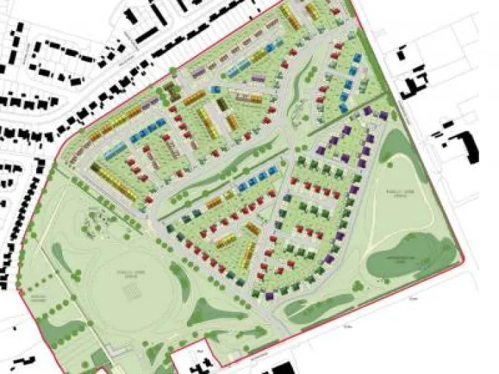
Dandara Layout_Aston Road 01
Aston Road Development
25 May 2017
PPG Chairman Cartoon 02
Patient Participation
23 May 2017
First Prev  1 of 3  Next Last
© 2012 – 2026 Haddenham.net