Haddenham.net Logo

Latest news

News stories are ordered below with the latest headlines at the top. Please keep us up-to-date by submitting stories to the editor.

Museum Exhibits 02
Haddenham Museum Needs Help
31st July 2018
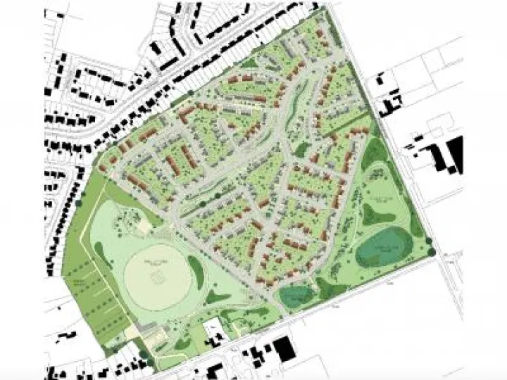
Dandara Site Plan 2018
Explaining New Road Names
30th July 2018
Jess Stretton
Paralympic Movement 70th Birthday
27th July 2018
Buckinghamshire-Best-Kept-Village
Best Kept Village 2018
27th July 2018
Dandara Site Plan 2018
Street Names for Dandara Site
27th July 2018
Mary Miller
Walking for Alzheimer's
27th July 2018
Road Works Signs
Stanbridge Road Works
25th July 2018
News 3
Keeping Kids Safe Online
24th July 2018
Road Resurfacing 09
Roadworks on Route to MK
23rd July 2018
Snakemoor Maintenace Jul18
Snakemoor Haircut
21st July 2018
Richborough Plans 01
Richborough Appeal Dismissed!
20th July 2018
Flower & Produce 02
Horticultural Society Open Show
19th July 2018
First Prev  1 of 3  Next Last
© 2012 – 2025 Haddenham.net